Mehr anzeigen zum Thema Beschreibung
Beschreibung
Das kleine Reihenmittelhaus ca. aus dem Jahr ca. 1974 in Calden-Westuffeln ist dank einer perfekten Raumplanung und Hanglage ein Raumwunder. Der Garten auf insgesamt ca. 177 m² Grundstücksfläche in Süd-West-Ausrichtung ist liebevoll angelegt.
Sie haben hier insgesamt 4 Zimmer Küche, Bad, und Gäste-WC mit insgesamt ca. 88 m² Wohnfläche plus ca. 19 m² Ausbaureserve im DG und weiteren ca. 19 m² Nutzfläche im KG, welche als Hobbyraum angegeben sind. Insgesamt verfügt das Objekt also über ca. 126 m² wohnlich zu nutzende Fläche.
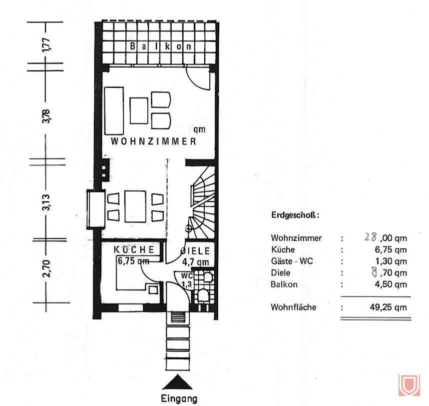
Sie betreten das Haus im Erdgeschoss über die Diele mit Garderobenmöglichkeit. Von hier aus gelangen Sie in die Küche (Küchenmöbel sind im Kaufpreis nicht enthalten), das Gäste-WC und in das mit ca. 28 m² sehr großzügige Wohn- und Esszimmer mit breiter Fensterfront und Ausgang auf den Balkon.
Im Obergeschoss befinden sich 3 Schlafzimmer und das Badezimmer.
Das Dachgeschoss verfügt eine Ausbaureserve von ca. 19 m².
Das Kellergeschoss bietet 2 Kellerräume zur Lagerung, den Heizungsraum und den Hobbyraum mit ca. 19 m², von welchem Sie Zutritt auf die Terrasse und den Garten haben. Hier ist aktuell eine weitere Küche untergebracht.
Achtung: Die uns vorliegenden, beigefügten Grundrisse sind alle seitenverkehrt.
Die Öl-Heizung stammt ca. aus dem Jahr 1995.
Fenster und Haustüren wurden in den 1990er und 2000er Jahren ersetzt.
Die Garage mit davor befindlichem Stellplatz verfügt über ein separates Grundbuch.
Das Objekt ist seit 2002 vermietet, wird aber 9 Monate nach notarieller Kaufvertragsunterzeichnung von dem aktuellen Mieter geräumt und kann selbst genutzt werden.
Sie haben hier insgesamt 4 Zimmer Küche, Bad, und Gäste-WC mit insgesamt ca. 88 m² Wohnfläche plus ca. 19 m² Ausbaureserve im DG und weiteren ca. 19 m² Nutzfläche im KG, welche als Hobbyraum angegeben sind. Insgesamt verfügt das Objekt also über ca. 126 m² wohnlich zu nutzende Fläche.
Sie betreten das Haus im Erdgeschoss über die Diele mit Garderobenmöglichkeit. Von hier aus gelangen Sie in die Küche (Küchenmöbel sind im Kaufpreis nicht enthalten), das Gäste-WC und in das mit ca. 28 m² sehr großzügige Wohn- und Esszimmer mit breiter Fensterfront und Ausgang auf den Balkon.
Im Obergeschoss befinden sich 3 Schlafzimmer und das Badezimmer.
Das Dachgeschoss verfügt eine Ausbaureserve von ca. 19 m².
Das Kellergeschoss bietet 2 Kellerräume zur Lagerung, den Heizungsraum und den Hobbyraum mit ca. 19 m², von welchem Sie Zutritt auf die Terrasse und den Garten haben. Hier ist aktuell eine weitere Küche untergebracht.
Achtung: Die uns vorliegenden, beigefügten Grundrisse sind alle seitenverkehrt.
Die Öl-Heizung stammt ca. aus dem Jahr 1995.
Fenster und Haustüren wurden in den 1990er und 2000er Jahren ersetzt.
Die Garage mit davor befindlichem Stellplatz verfügt über ein separates Grundbuch.
Das Objekt ist seit 2002 vermietet, wird aber 9 Monate nach notarieller Kaufvertragsunterzeichnung von dem aktuellen Mieter geräumt und kann selbst genutzt werden.
Mehr anzeigen zum Thema Ausstattung
Ausstattung
– Raumwunder
– Heizung aus ca. 1995
– Glasfaser
– Kaminofen "opional"
– Fenster/Haustür ca. 1995
– Dachflächenfenster mit Rollo ca. 2002
– Terrasse
– Balkon
– Garage mit Sektionaltor
– KFZ Stellplatz
– Garten
– Vollkeller mit Hobbyraum
– Ausbaureserve
– Heizung aus ca. 1995
– Glasfaser
– Kaminofen "opional"
– Fenster/Haustür ca. 1995
– Dachflächenfenster mit Rollo ca. 2002
– Terrasse
– Balkon
– Garage mit Sektionaltor
– KFZ Stellplatz
– Garten
– Vollkeller mit Hobbyraum
– Ausbaureserve
Mehr anzeigen zum Thema Lage
Lage
Calden Westuffeln – nördliche von Kassel im Kasseler Landkreis gelegen – wurde in 1972 im Rahmen der Gebietsreform zusammen mit 5 weiteren Ortsteilen in die Gemeinde Calden eingegliedert.
Von bewaldeten Hügeln umgeben bietet Westuffeln für seine ca. 1500 Einwohner naturnahe Lebensqualität.
2 Sportplätze, 1 Turnhalle, ein Grillplatz und mehrere Spielplätze fördern das Sozialleben in der Gemeinde. Eine Kindertagesstätte im Ortskern sorgt für eine Betreuungsmöglichkeit schon für die kleinsten Gemeindemitglieder.
Einkaufsmöglichkeiten gibt es direkt im Ort. Westuffeln ist an den Nordhessischen Verkehrsverbund angeschlossen.
Calden selbst ist nur wenige Autominuten entfernt und verfügt über Supermärkte und Fachhändler, gastronomische Betriebe, die Sparkasse, Ärzte, Apotheken, Kindergärten, Schulen, den Flughafen und ein beliebtes Waldschwimmbad.
Hinsichtlich des Gewerbestandorts zeigt sich in den letzten Jahren ein positiver Trend. So haben sich insbesondere im Bereich des Flugplatzes einige Firmen angesiedelt. Eine Entwicklung, die sich langsam aber stetig fortzusetzen scheint. Durch die B7 ist Calden verkehrsgünstig zwischen Kassel und Warburg gelegen.
Von bewaldeten Hügeln umgeben bietet Westuffeln für seine ca. 1500 Einwohner naturnahe Lebensqualität.
2 Sportplätze, 1 Turnhalle, ein Grillplatz und mehrere Spielplätze fördern das Sozialleben in der Gemeinde. Eine Kindertagesstätte im Ortskern sorgt für eine Betreuungsmöglichkeit schon für die kleinsten Gemeindemitglieder.
Einkaufsmöglichkeiten gibt es direkt im Ort. Westuffeln ist an den Nordhessischen Verkehrsverbund angeschlossen.
Calden selbst ist nur wenige Autominuten entfernt und verfügt über Supermärkte und Fachhändler, gastronomische Betriebe, die Sparkasse, Ärzte, Apotheken, Kindergärten, Schulen, den Flughafen und ein beliebtes Waldschwimmbad.
Hinsichtlich des Gewerbestandorts zeigt sich in den letzten Jahren ein positiver Trend. So haben sich insbesondere im Bereich des Flugplatzes einige Firmen angesiedelt. Eine Entwicklung, die sich langsam aber stetig fortzusetzen scheint. Durch die B7 ist Calden verkehrsgünstig zwischen Kassel und Warburg gelegen.
Mehr anzeigen zum Thema Sonstige Angaben
Sonstige Angaben
PROVISIONSHINWEIS:
Mit der Anfrage bei und durch Inanspruchnahme der Dienstleistung der Firma Vellmar-Immobilien.de Martin Kurch, wird ein Maklervertrag geschlossen. Sofern es durch die Tätigkeit der Firma Vellmar-Immobilien.de Martin Kurch zu einem wirksamen Hauptvertrag mit der Eigentümerseite kommt, hat der Interessent eine Käuferprovision / Maklercourtage in Höhe von
3 % (inkl. MwSt.) des beurkundeten Kaufpreises an die von Vellmar-Immobilien.de Martin Kurch gegen Rechnung zu zahlen.
GELDWÄSCHE:
Als Immobilienmaklerunternehmen ist die von Vellmar-Immobilien.de Martin Kurch nach § 2 Abs. 1 Nr. 14 und § 10 Abs. 3 Geldwäschegesetz (GwG) dazu verpflichtet, bei der Begründung einer Geschäftsbeziehung die Identität des Vertragspartners festzustellen und zu überprüfen. Hierzu ist es erforderlich, dass wir nach § 11 GwG die relevanten Daten Ihres Personalausweises festhalten (wenn Sie als natürliche Person handeln) – beispielsweise mittels einer Kopie. Bei einer juristischen Person benötigen wir eine Kopie des Handelsregisterauszugs, aus welchem der wirtschaftlich Berechtigte hervorgeht. Das Geldwäschegesetz sieht vor, dass der Makler die Kopien bzw. Unterlagen fünf Jahre aufbewahren muss.
HAFTUNG:
Wir weisen darauf hin, dass die von uns weitergegebenen Objektinformationen, Unterlagen, Pläne etc. vom Verkäufer bzw. Vermieter oder aus dritten Quellen stammen. Eine Haftung für die Richtigkeit oder Vollständigkeit der Angaben übernehmen wir daher nicht. Es obliegt daher unseren Kunden, die darin enthaltenen Objektinformationen und Angaben auf ihre Richtigkeit hin zu überprüfen. Alle Immobilienangebote sind freibleibend und vorbehaltlich Irrtümer, Zwischenverkauf- und Vermietung oder sonstiger Zwischenverwertung.
UNSER SERVICE FÜR SIE ALS EIGENTÜMER:
Planen Sie den Verkauf oder die Vermietung Ihrer Immobilie?
Lassen Sie kostenfrei und unverbindlich den aktuellen Wert Ihrer Immobilie von uns bestimmen.
Mit der Anfrage bei und durch Inanspruchnahme der Dienstleistung der Firma Vellmar-Immobilien.de Martin Kurch, wird ein Maklervertrag geschlossen. Sofern es durch die Tätigkeit der Firma Vellmar-Immobilien.de Martin Kurch zu einem wirksamen Hauptvertrag mit der Eigentümerseite kommt, hat der Interessent eine Käuferprovision / Maklercourtage in Höhe von
3 % (inkl. MwSt.) des beurkundeten Kaufpreises an die von Vellmar-Immobilien.de Martin Kurch gegen Rechnung zu zahlen.
GELDWÄSCHE:
Als Immobilienmaklerunternehmen ist die von Vellmar-Immobilien.de Martin Kurch nach § 2 Abs. 1 Nr. 14 und § 10 Abs. 3 Geldwäschegesetz (GwG) dazu verpflichtet, bei der Begründung einer Geschäftsbeziehung die Identität des Vertragspartners festzustellen und zu überprüfen. Hierzu ist es erforderlich, dass wir nach § 11 GwG die relevanten Daten Ihres Personalausweises festhalten (wenn Sie als natürliche Person handeln) – beispielsweise mittels einer Kopie. Bei einer juristischen Person benötigen wir eine Kopie des Handelsregisterauszugs, aus welchem der wirtschaftlich Berechtigte hervorgeht. Das Geldwäschegesetz sieht vor, dass der Makler die Kopien bzw. Unterlagen fünf Jahre aufbewahren muss.
HAFTUNG:
Wir weisen darauf hin, dass die von uns weitergegebenen Objektinformationen, Unterlagen, Pläne etc. vom Verkäufer bzw. Vermieter oder aus dritten Quellen stammen. Eine Haftung für die Richtigkeit oder Vollständigkeit der Angaben übernehmen wir daher nicht. Es obliegt daher unseren Kunden, die darin enthaltenen Objektinformationen und Angaben auf ihre Richtigkeit hin zu überprüfen. Alle Immobilienangebote sind freibleibend und vorbehaltlich Irrtümer, Zwischenverkauf- und Vermietung oder sonstiger Zwischenverwertung.
UNSER SERVICE FÜR SIE ALS EIGENTÜMER:
Planen Sie den Verkauf oder die Vermietung Ihrer Immobilie?
Lassen Sie kostenfrei und unverbindlich den aktuellen Wert Ihrer Immobilie von uns bestimmen.
Mehr anzeigen zum Thema Sonstige Angaben
Energieausweis
A+
< 30
A
30 – 50
B
50 – 75
C
75 – 100
D
100 – 130
E
130 – 160
F
160 – 200
G
200 – 250
H
> 250
- Nutzungsart
- Wohnen
- Baujahr lt. Energieausweis
- 1975
- Endenergiebedarf
- 135 kWh/(m²a)
- Energieausweis
- Bedarfsausweis
- Energieausweis gültig bis
- 05.04.2032
- Energieeffizienzklasse
- E
- wesentlicher Energieträger
- Öl
Ihr Ansprechpartner
Herr Martin Kurch
Vellmar-Immobilien.de e.K.
- Tel.:
- 0561 83 09 19 31
- E-Mail:
- kurch@vellmar-immobilien.de
Holländische Str. 76
34246 Vellmar